

U kunt ook een bericht sturen, dan nemen wij zo spoedig mogelijk met u contact op.
Rustig gelegen nabij strand en duinen
Op een rustige plek op het populaire Europarcs Resort Poort van Zeeland, staat dit goed onderhouden recreatiechalet op eigen grond. Het perceel van 200 m2 biedt voldoende ruimte en beschikt over een eigen parkeerplaats op eigen terrein. De ligging is ideaal, dicht bij de uitgang naar het strand en de duinen.
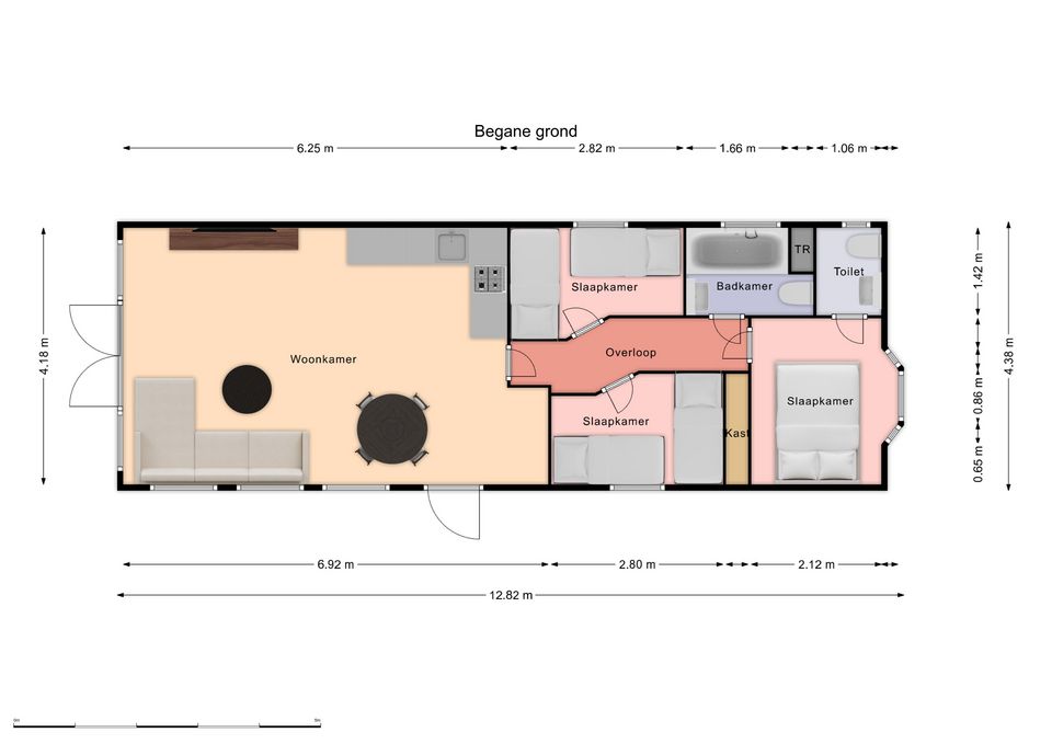
Comfortabele woonkamer en complete keuken
De ruime woonkamer is voorzien van inbouwspots, een nieuw bankstel, een televisiemeubel en een eettafel met vier stoelen. De complete keuken is van alle gemakken voorzien, zoals een vaatwasser, een oven, een Amerikaanse koelkast, een wasmachine en een gaskookplaat.
Drie slaapkamers en twee badkamers
Het chalet beschikt over drie slaapkamers met veel bergruimte. De badkamer is uitgerust met een ligbad met daarin douche, een toilet en een wastafelmeubel. De ouderslaapkamer heeft een eigen wastafel en toilet.
Voorzieningen en onderhoud
Het chalet is voorzien van een eigen CV-installatie en goed internet. Het is gemaakt van onderhoudsarme materialen en heeft een metalen dak. De kunststof kozijnen zijn voorzien van HR-glas. Het chalet is volledig geïsoleerd en heeft een energielabel C.
Terras en inventaris
Vanuit de woonkamer heeft u via een schuifpui toegang tot het terras. Het chalet wordt aangeboden inclusief perceel en complete inventaris.
Vraagprijs
De vraagprijs voor dit recreatiechalet is € 185.000 kosten koper, btw vrij.
Kenmerken op een rijtje:
Interesse?
Neem contact op met Voorne Makelaars voor een bezichtiging.
De gegevens op deze webpagina zijn bedoeld om u een algemene indruk te geven over de woning. Hoewel deze informatie met de grootst mogelijke zorg is samengesteld, blijft de mogelijkheid bestaan dat er fouten en/of onvolledigheden in de omschrijving en/of de tekeningen staan. Noch de verkoper, noch Voorne Makelaars aanvaardt in dit geval enige aansprakelijkheid. Aan de informatie en de tekeningen op deze webpagina kunnen geen rechten worden ontleend.
U bent zelf verantwoordelijk voor de afwikkeling van relevante fiscale aspecten en de overdrachtsbelasting. U wordt geadviseerd om hierbij te laten adviseren door een specialist.