

U kunt ook een bericht sturen, dan nemen wij zo spoedig mogelijk met u contact op.
Exclusief Recreatiechalet te Koop op Resort Poort van Zeeland - Eigen Grond!
Adres: Resort Poort van Zeeland, kavel 822, Hellevoetsluis
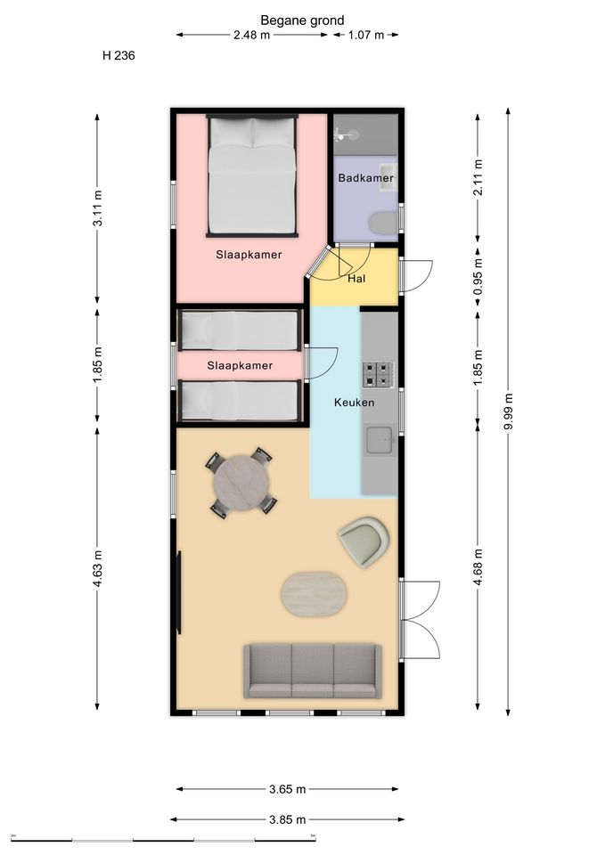
Bent u op zoek naar uw eigen, perfect onderhouden recreatiechalet op een toplocatie aan de Zuid-Hollandse kust? Grijp dan nu uw kans! Wij presenteren u dit prachtige, vrijstaande recreatiechalet gelegen op een royaal eigen perceel van maar liefst 248 m² op het geliefde Resort Poort van Zeeland.
ℹ️ Unten können Sie die Informationen auf Deutsch lesen.
De ideale plek voor ontspanning en genieten!
Dit charmante chalet is momenteel in eigen gebruik en verkeert in uitstekende staat. U kunt er direct intrekken en genieten van al het moois dat deze plek te bieden heeft. De zonnige tuin, met diverse gezellige zitjes in zowel de zon als de schaduw, nodigt uit tot lange zomeravonden, ontspannen ochtenden en heerlijke momenten met familie en vrienden. De openslaande deuren vanuit de woonkamer creëren een naadloze overgang naar dit groene paradijs.
Comfort en gemak staan voorop:
Het chalet is van alle gemakken voorzien om uw verblijf zo aangenaam mogelijk te maken:
NB: De hoekbank op de foto’s wordt vervangen door een nieuwe bank.
Duurzaam en onderhoudsvriendelijk:
Dit chalet is gebouwd met het oog op duurzaamheid en minimaal onderhoud. De kunststof gevelbekleding, het metalen zadeldak en de kunststof kozijnen met HR++ glas zorgen voor een uitstekende isolatie en een lange levensduur.
De vraagprijs is inclusief de volledige inventaris, het perceel en het chalet! U koopt dus een compleet en direct klaar om van te genieten vakantieverblijf.
Gebruiksmogelijkheden en Kosten:
Op Resort Poort van Zeeland zijn er diverse mogelijkheden voor het gebruik van uw recreatiechalet. Aangezien dit chalet nu in eigen gebruik is, valt het momenteel onder de categorie Personal Ownership. Dit betekent dat u de vrijheid heeft om uw woning volledig naar eigen wens in te richten en te gebruiken, eventueel te delen met vrienden en familie. Commerciële verhuur vindt momenteel niet plaats.
Indien u in de toekomst zou overwegen om het chalet (gedeeltelijk) te verhuren, biedt EuroParcs verschillende samenwerkingsvormen:
Park- en energiekosten:
De parkkosten bedragen circa € 3.880 per jaar en omvatten de basisvoorzieningen en het onderhoud van het park. Deze kosten kunnen desgewenst in 11 termijnen worden voldaan.
De energiekosten zijn afhankelijk van uw verbruik. Er wordt gewerkt met een voorschot. Voor een chalet van vergelijkbare grootte (circa 55 m²) bedraagt het voorschot voor water, gas en elektriciteit circa € 500 per kwartaal. U betaalt uiteindelijk alleen de daadwerkelijk gemaakte kosten.
Belangrijk bij verhuur: Indien u besluit het chalet te verhuren, worden er extra kosten in rekening gebracht voor legionellabestrijding, brandbeveiliging, de ICY Licentie en het onderhoud van de tuin.
Locatie Resort Poort van Zeeland:
Resort Poort van Zeeland is een prachtig vakantiepark gelegen in de directe omgeving van het Haringvliet, de Noordzeestranden en gezellige plaatsen als Hellevoetsluis, Ouddorp en de historische stad Brielle. Het park biedt diverse faciliteiten voor jong en oud, waardoor het een ideale uitvalsbasis is voor een heerlijke vakantie of weekendje weg.
Bent u enthousiast geworden?
Mis deze unieke kans niet om eigenaar te worden van dit prachtige recreatiechalet op eigen grond! Neem vandaag nog contact met ons op voor een bezichtiging en ervaar zelf de rust en de mogelijkheden die deze locatie te bieden heeft.
🇩🇪 Nachfolgend die Beschreibung des Ferienchalets auf Deutsch.
Absolut! Hier ist die Übersetzung der Wohnungspresentation ins Deutsche:
Wohnungspräsentation EPVZ 822
Exklusives Ferienchalet zu verkaufen im Resort Poort van Zeeland - Eigengrundstück!
Adresse: Resort Poort van Zeeland, Parzelle 822, Hellevoetsluis
Suchen Sie Ihr eigenes, perfekt gepflegtes Ferienchalet in Toplage an der südholländischen Küste? Dann ergreifen Sie jetzt Ihre Chance! Wir präsentieren Ihnen dieses wunderschöne, freistehende Ferienchalet auf einem großzügigen Eigengrundstück von sage und schreibe 248 m² im beliebten Resort Poort van Zeeland.
Der ideale Ort für Entspannung und Genuss!
Dieses charmante Chalet wird derzeit privat genutzt und befindet sich in ausgezeichnetem Zustand. Sie können direkt einziehen und all die Schönheiten genießen, die dieser Ort zu bieten hat. Der sonnige Garten mit verschiedenen gemütlichen Sitzbereichen in Sonne und Schatten lädt zu langen Sommerabenden, entspannten Morgenstunden und herrlichen Momenten mit Familie und Freunden ein. Die Flügeltüren vom Wohnzimmer schaffen einen nahtlosen Übergang zu diesem grünen Paradies.
Komfort und Bequemlichkeit stehen an erster Stelle:
Das Chalet ist mit allen Annehmlichkeiten ausgestattet, um Ihren Aufenthalt so angenehm wie möglich zu gestalten:
Hinweis: Das Ecksofa auf den Fotos wird durch ein neues Sofa ersetzt.
Nachhaltig und wartungsfreundlich:
Dieses Chalet wurde mit Blick auf Nachhaltigkeit und minimalen Wartungsaufwand gebaut. Die Kunststoff-Fassadenverkleidung, das Metalldach und die Kunststofffenster mit HR++-Glas sorgen für eine ausgezeichnete Isolierung und eine lange Lebensdauer.
Der Kaufpreis beinhaltet das gesamte Inventar, das Grundstück und das Chalet! Sie erwerben also ein komplettes und sofort bezugsfertiges Feriendomizil.
Nutzungsmöglichkeiten und Kosten:
Im Resort Poort van Zeeland gibt es verschiedene Möglichkeiten zur Nutzung Ihres Ferienchalets. Da dieses Chalet derzeit zur Eigennutzung bestimmt ist, fällt es momentan unter die Kategorie "Personal Ownership". Dies bedeutet, dass Sie die Freiheit haben, Ihr Haus ganz nach Ihren Wünschen einzurichten und zu nutzen, eventuell mit Freunden und Familie zu teilen. Eine kommerzielle Vermietung findet derzeit nicht statt.
Sollten Sie in Zukunft erwägen, das Chalet (teilweise) zu vermieten, bietet EuroParcs verschiedene Kooperationsformen an:
Park- und Energiekosten:
Die Parkkosten betragen circa 3.880 € pro Jahr und umfassen die Grundausstattung und die Instandhaltung des Parks. Diese Kosten können auf Wunsch in 11 Raten bezahlt werden.
Die Energiekosten sind abhängig von Ihrem Verbrauch. Es wird mit einem Vorschuss gearbeitet. Für ein Chalet vergleichbarer Größe (circa 55 m²) beträgt der Vorschuss für Wasser, Gas und Strom circa 500 € pro Quartal. Sie zahlen letztendlich nur die tatsächlich entstandenen Kosten.
Wichtig bei Vermietung: Wenn Sie sich entscheiden, das Chalet zu vermieten, werden zusätzliche Kosten für Legionellenbekämpfung, Brandschutz, die ICY-Lizenz und die Gartenpflege berechnet.
Lage Resort Poort van Zeeland:
Das Resort Poort van Zeeland ist ein wunderschöner Ferienpark in unmittelbarer Nähe des Haringvliet, der Nordseestrände und gemütlicher Orte wie Hellevoetsluis, Ouddorp und der historischen Stadt Brielle. Der Park bietet verschiedene Einrichtungen für Jung und Alt und ist somit ein idealer Ausgangspunkt für einen herrlichen Urlaub oder ein Wochenende.
Sind Sie begeistert?
Verpassen Sie nicht diese einmalige Gelegenheit, Eigentümer dieses wunderschönen Ferienchalets auf Eigengrundstück zu werden! Nehmen Sie noch heute Kontakt mit uns auf für eine Besichtigung und erleben Sie selbst die Ruhe und die Möglichkeiten, die dieser Standort zu bieten hat.
De gegevens op deze webpagina zijn bedoeld om u een algemene indruk te geven over de woning. Hoewel deze informatie met de grootst mogelijke zorg is samengesteld, blijft de mogelijkheid bestaan dat er fouten en/of onvolledigheden in de omschrijving en/of de tekeningen staan. Noch de verkoper, noch Voorne Makelaars aanvaardt in dit geval enige aansprakelijkheid. Aan de informatie en de tekeningen op deze webpagina kunnen geen rechten worden ontleend.
U bent zelf verantwoordelijk voor de afwikkeling van relevante fiscale aspecten en de overdrachtsbelasting. U wordt geadviseerd om hierbij te laten adviseren door een specialist.